を大切にし「住まいから始まる一生のお付き合い」をモットーに!

野村ハウス株式会社

物件詳細情報

物件キーワード検索

学校名で検索したい方は、こちらから入力して下さい

物件検索

ご希望の種別を選択してください


以下ご希望の条件を選択して物件検索ボタンを押して下さい
駅選択

県市区選択

賃料
価格
駅歩分
築年数
面積

広島の人気エリア

広島市中区
戸建 マンション 土地
広島市 東区
戸建 マンション 土地
広島市 南区
戸建 マンション 土地
広島市 西区
戸建 マンション 土地
広島市 安佐南区
戸建 マンション 土地
広島市 安佐北区
戸建 マンション 土地
広島市 佐伯区
戸建 マンション 土地
廿日市市
戸建 マンション 土地
広島市 安芸区・安芸郡
戸建 マンション 土地

価格帯で不動産を探す

~1000万円未満
戸建 マンション 土地
1000~2000万円未満
戸建 マンション 土地
2000~3000万円未満
戸建 マンション 土地
3000~4000万円未満
戸建 マンション 土地
4000~5000万円未満
戸建 マンション 土地
5000万円~
戸建 マンション 土地

こだわりテーマで不動産を探す

会員登録でお得な情報をGET!

現在の未公開物件数 100件

  • 新築戸建
    東区牛田東1丁目(新築戸建)

    • 東区牛田東1丁目新築 建物面積94.39㎡。2LDK+納戸の間取りです。
    • 東区牛田東1丁目新築 外観。木造2階建てです。
    • 東区牛田東1丁目新築 内観
    • 東区牛田東1丁目新築 システムキッチン
    • 東区牛田東1丁目新築 浴室
    • 東区牛田東1丁目新築 洗面化粧台
    • 東区牛田東1丁目新築 トイレ
    • 東区牛田東1丁目新築 人気の対面式キッチン
    • 東区牛田東1丁目新築 玄関
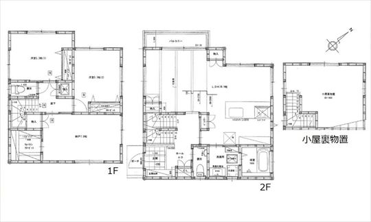
    価格 3930万円    新築戸建    間取 2LDK

    建物:94.39㎡(28.55坪) 土地:132.20㎡(39.99坪) 新築戸建です。

     

    令和2年5月末完成予定です☆彡

    ◎「牛田東1丁目バス停」徒歩4分☆ 

    ◎開放感を生み出す梁出し天井のあるLDK

    ◎キッチンはお手入れ便利なIHクッキングヒーター食器洗浄乾燥機付き!
    対面式なので家事をしながらご家族とのコミュニケーションも良好です☆

    小屋裏物置ウォークインクローゼットがあるので住空間はスッキリ広々♪♪

    トイレはお手入れラクラクなタンクレスタイプ♪ 快適なウォシュレット付きです(^▽^)

    ◎防音と断熱に効果を発揮するLow-E複層ガラス

    ◎閑静な住宅地で小さなお子様からご年配の方まで安心して暮らせる住環境です☆

    ◎駐車スペース有り♪

     

     

     

    ★お気軽にお問い合わせください★
    お問合せ先は、TEL:082-568-2622

     

    ★会員登録(無料)で、非公開物件の情報がご覧頂けたり、希望物件の新着情報が届きます! → 登録はこちら
     

     

    広島不動産の売買・仲介・購入・売却・買取り・賃貸・管理は「野村ハウス」へご用命くださいませ。m(__)m

    価格 3930万円
    間取 2LDK
    所在地 広島県広島市東区牛田東1丁目
    交通 バス バス(牛田東1丁目 分 徒歩4分)
    完成時期 2020年05月
    新築/中古 新築・未入居
    修繕積立金  
    共益費・管理費  
    建物面積 94.39m²
    計測方式  
    バルコニー  
    向き  
    建物階数 地上 2階
     
    部屋階数  
    部屋・区画番号  
    総戸/区画数 1
    建物構造 木造
    建築面積  
    間取内容 洋室5.3畳1室(1階) 洋室5.3畳1室(1階) 納戸7.5畳1室(1階) 
    LDK18.1畳1室(2階) 
    駐車場  空有  
    取引態様 仲介
    地目 宅地
    用途地域 第一種住居
    土地面積 132.20m²
    土地面積計測方式  
    建ぺい率 60%
    容積率 160%
    道路 角地 公道 南西 m
    幅員4m
    セットバック  
    学区 牛田小学校 牛田中学校
    水道 公営
    ガス  
    トイレ 公共下水
    引渡/入居時期 相談    
    現況 空家
    物件番号 27690
    特記事項 北西側道路後退有  南西側道路占用部分有  宅地造成工事規制区域  一般地区(景観計画関係)  居住誘導区域  土砂災害警戒区域
    Loading...
    • 東区矢賀3丁目(新築戸建)東区矢賀3丁目(新築戸建)
      3,680万円 4LDK
      広島市東区 矢賀3丁目

      JR芸備線矢賀駅
    • 東区矢賀3丁目(新築戸建)東区矢賀3丁目(新築戸建)
      3,730万円 3LDK
      広島市東区 矢賀3丁目

      JR芸備線矢賀駅
    ※物件掲載内容と現況に相違がある場合は現況を優先と致します。

    問合せ先

    野村ハウス株式会社
    〒732-0052  広島県広島市東区光町一丁目11-5 チサンマンション広島411号 TEL 082-568-2622 FAX 082-568-2623
     

      お名前 (必須)

      メールアドレス (必須 ※メールアドレスは必ず登録してください)

      電話番号、又は携帯番号

      FAX番号

      お問い合わせ内容
       物件を実際に見たい間取り図が見たい周辺環境を知りたい最新の空室状況を知りたい入居に関して相談したいお店(不動産会社)に行きたい。

      件名

      メッセージ本文